Obra nueva en El Campello – Edificio Sinuoso en El Campello – Alicante

 

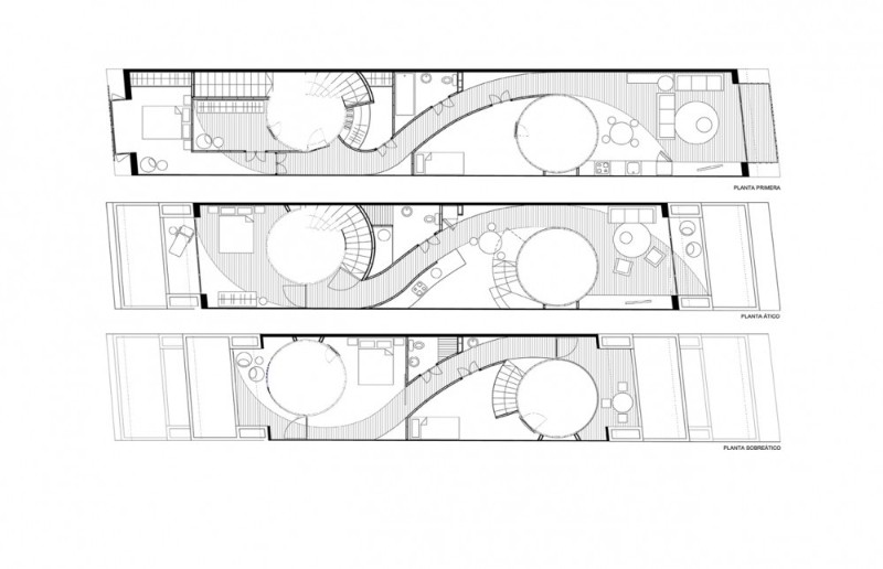
La configuración espacial de las viviendas se plantea alrededor de dos patios circulares que perforan la planta longitudinal y distribuyen espacios habitables en torno a los mismos.

Estos patios translúcidos incorporan la luz a las viviendas a la vez que una atmósfera evanescente, ordenan el espacio interior estableciendo las estancias de manera SINUOSA, ayudando a olvidar la percepción longitudinal del espacio.

El resultado; una circulación serpenteante que descubre estancias vivideras, habitaciones de paramentos curvos, percepción espacial continua, y al fondo, esta  la playa…

Info:                 Casa sinuosa – calle san vicente, 53, campello, alicante
Promotor:     Joost Wouters, privado / superficie: 420 m2
Team:    Aniana Ruiz Diez (arquitect), David Navarro Moreno ( arquitect), María Jesús Sansano Javayoles( arquiect)
Builder: Eurobuild Costablanca S.L.
Photos:  David Frutos
Magazine: Exposición AMPM www.plataformaaquitectura.cl
                    Architizer.com

 

Keywords: Nueva Construction,Construccion Residencial,Casas Modernas,Construccion de Garaje,Ampliaciones,Parkings,Remodelacion de Aticos,Patios,Pavimentos & Alicatados,Albañileria,Electricidad,Fontaneria,Carpinteria,Muros,Alfaz del Pi, Alicante, Altea, Benidorm, Benissa, Bonalba, Busot, Calpe, Castalla,costa blanca,Coveta Fuma, El Campello, Elche, Elda, El Dorado, gunita, Gunite, Jijona, La Nucia, Muchamiel, Novelda,Pisnella, Polop, San Juan, Santa Pola ,San Vicente, Valle Dorado